移住体験住宅
移住体験住宅
「移住を検討している」「松川町での暮らしを体験してみたい」という方、
2泊3日から最長29泊30日間滞在可能な”移住体験住宅”がご利用いただけます!
◎1泊2,000円 ◎利用人数不問 ◎家電・家財道具備え付け
ぜひご利用ください。
住宅の概要

【建物外観】
駐車場(1台分)併設
【概要】1974年築ブロック造平屋建て2棟 2017年改築済
【所在】松川町元大島2974番地17
【設置備品】関係書類「備品一覧」のとおり ※寝具・洗面用品・消耗品等、一覧にないものはご用意ください。
【周辺施設】スーパー0.6km コンビニ0.9km 役場0.8km 病院0.5km 郵便局1.0km
【台所】
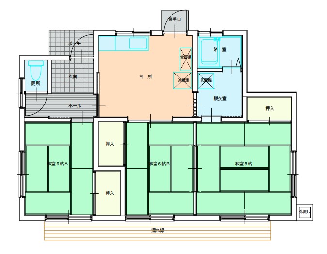
【居室】和室2部屋(8+6畳と6畳)
【浴室】

【間取図】
移住体験住宅チラシ

対象者
松川町以外にお住まいの方で、松川町への移住をご検討中の方。ご家族の同伴も可能です。
ご利用(連続)日数
2泊3日~最長29泊30日
ご利用料金
1棟1泊につき 2,000円(利用人数不問)
申込方法
1 役場へ電話またはメールでご希望日をお伝えください。空き状況を確認し仮予約をいたします。
※利用開始日及び退去日ともに原則平日をお願いしております。
2 利用開始日の10日前までに下記書類を郵便またはメールでご提出ください。
※仮予約した場合は原則、仮予約後10日以内にご提出ください。
【提出書類】
- 松川町移住体験住宅利用申込書
- 申込ご本人の身分証明書(運転免許証、パスポートなど)の写し
【送付先】
郵 送:〒399-3303 長野県下伊那郡松川町元大島3823 松川町役場まちづくり政策課
メール:seisaku@town.matsukawa.lg.jp
注意事項
・ご利用前に必ず下記の「松川町移住体験住宅利用要領」を熟読し、内容をご理解ください。
・利用料は利用開始日に前納いただきます。現金のみの取り扱いとなりますのでご注意ください。
・下記の行為は禁止となりますのでご了承ください。
近隣住民の迷惑となる行為/住宅内での喫煙/住宅の改修・増築/ペットの同伴/転貸行為
・Wi-Fi設備はありませんので予めご了承ください。
・退去時は屋内外の清掃をお願いします。また、職員立会いの下、退去検査を行います。
関連書類
(注意)ダウンロードします。
この記事に関するお問い合わせ先
- 現在のページ
-
- ホーム
- 組織から探す
- まちづくり政策課
- まちづくり推進係
- 松川町ってどんなところ?
- 移住体験住宅
更新日:2025年03月26日